DEE WHY NSW 2099
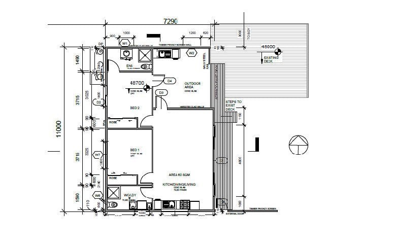
Two Bedroom Granny Flat
Thomas Property in conjunction with CGD Constructions have been appointed to design and construct a two bedroom Granny Flat.
The cost of design concept as follows:
* Design and construction $170,000 (including GST)
* Including 2x concepts, 2x layouts and 1x site plans
* Landscaping and installation included in design price
Thomas Property and CGD Constructions have been identified by a number of significant public and private Government sectors, developers and the community, following our due diligence, as a partner of choice.
The market is aware of our groups' capacity, experience and innovative approach to delivering creative solutions. Together we have established with a structure that can readily facilitate rapid growth, to match our wider group footprint and deliver maximum benefits to our clients.
For similar designs, please contact our Project Team on 02 9953 1039.
The cost of design concept as follows:
* Design and construction $170,000 (including GST)
* Including 2x concepts, 2x layouts and 1x site plans
* Landscaping and installation included in design price
Thomas Property and CGD Constructions have been identified by a number of significant public and private Government sectors, developers and the community, following our due diligence, as a partner of choice.
The market is aware of our groups' capacity, experience and innovative approach to delivering creative solutions. Together we have established with a structure that can readily facilitate rapid growth, to match our wider group footprint and deliver maximum benefits to our clients.
For similar designs, please contact our Project Team on 02 9953 1039.
